_page-0001.jpg)
現地の雰囲気や周辺環境、建物プラン例など、
写真や図面とあわせてご紹介します。
また、現地案内・プランのご相談・資金計画のご相談も承っております。
「実際の土地を見てみたい」「予算について相談したい」など、
どうぞお気軽にお問合せください。
◎地図 現地写真




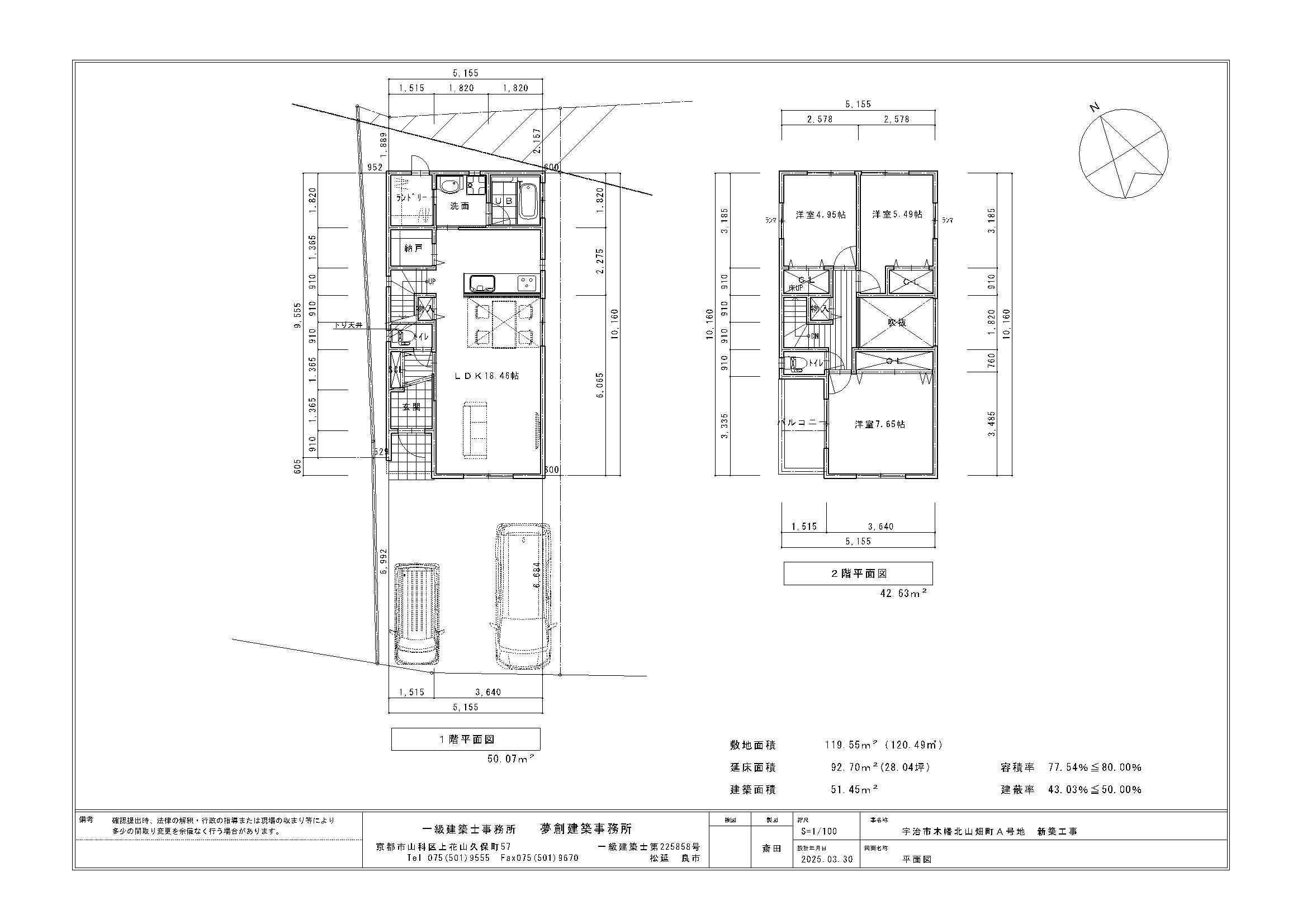
◎参考プラン A号地 図面(平面図)

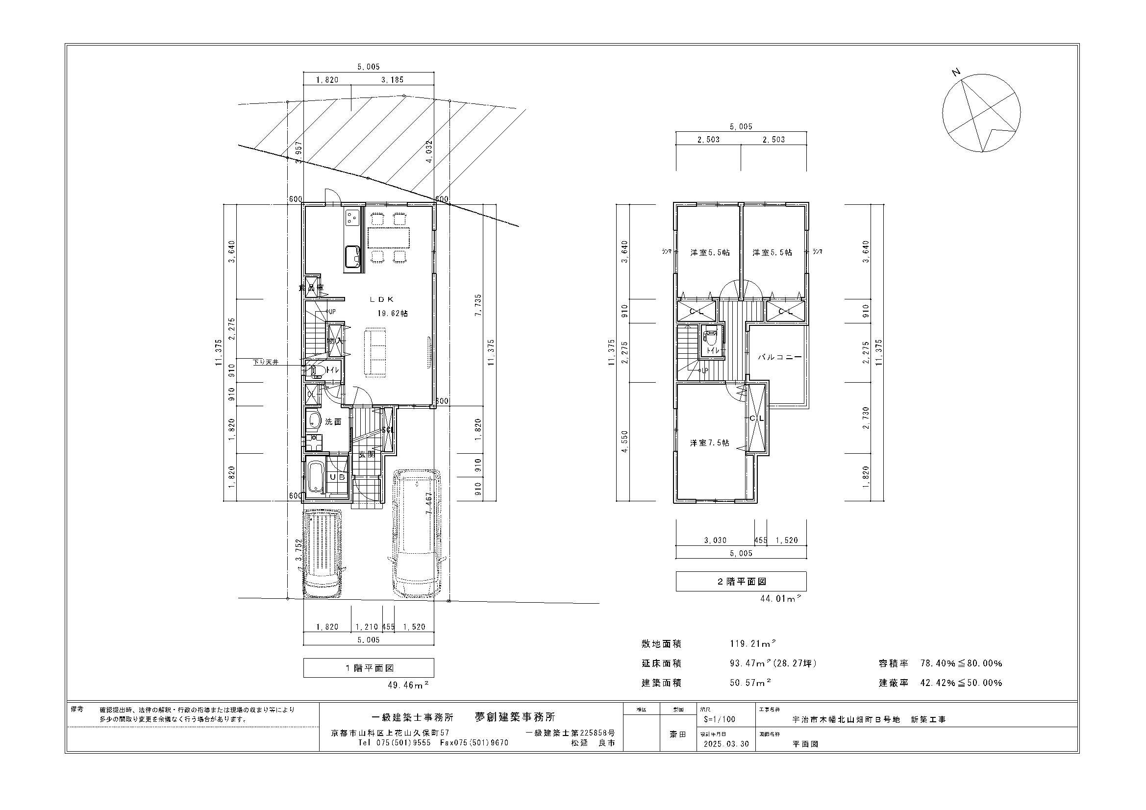
◎参考プラン B号地 図面(平面図)

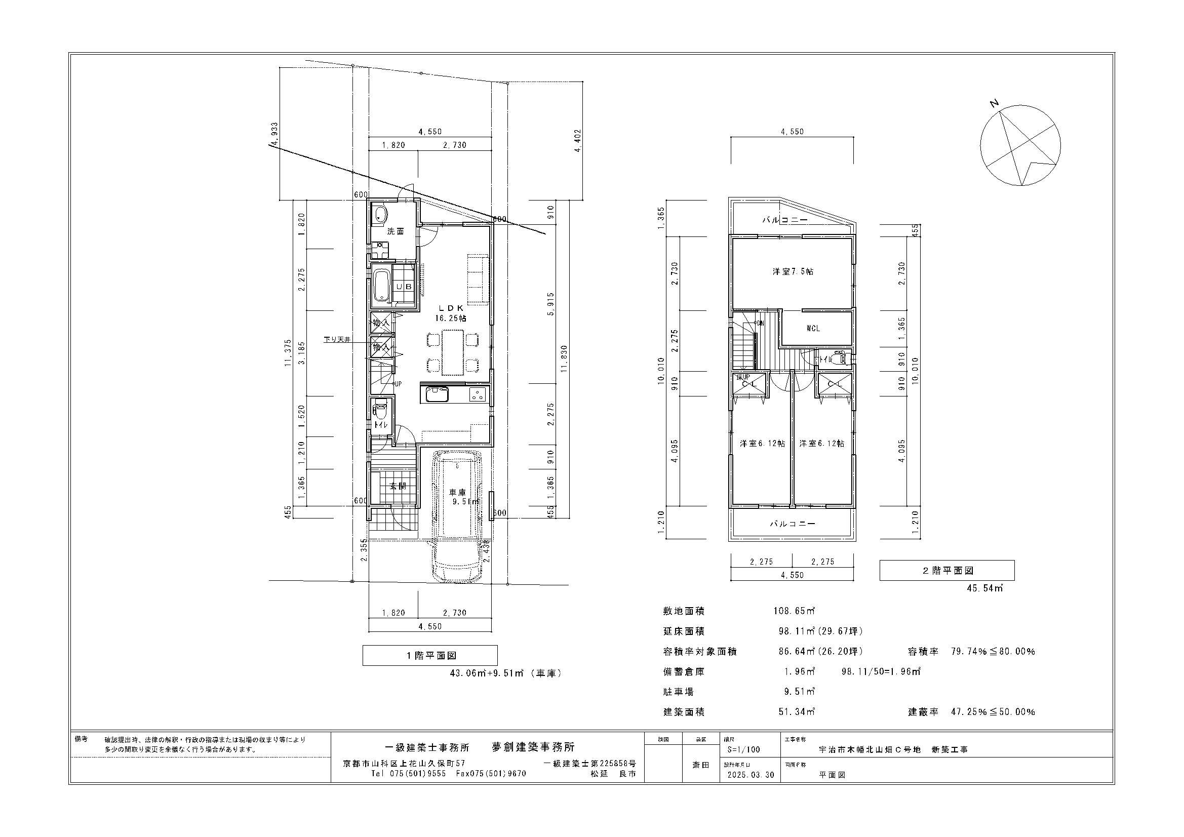
◎参考プラン C号地 図面(平面図)

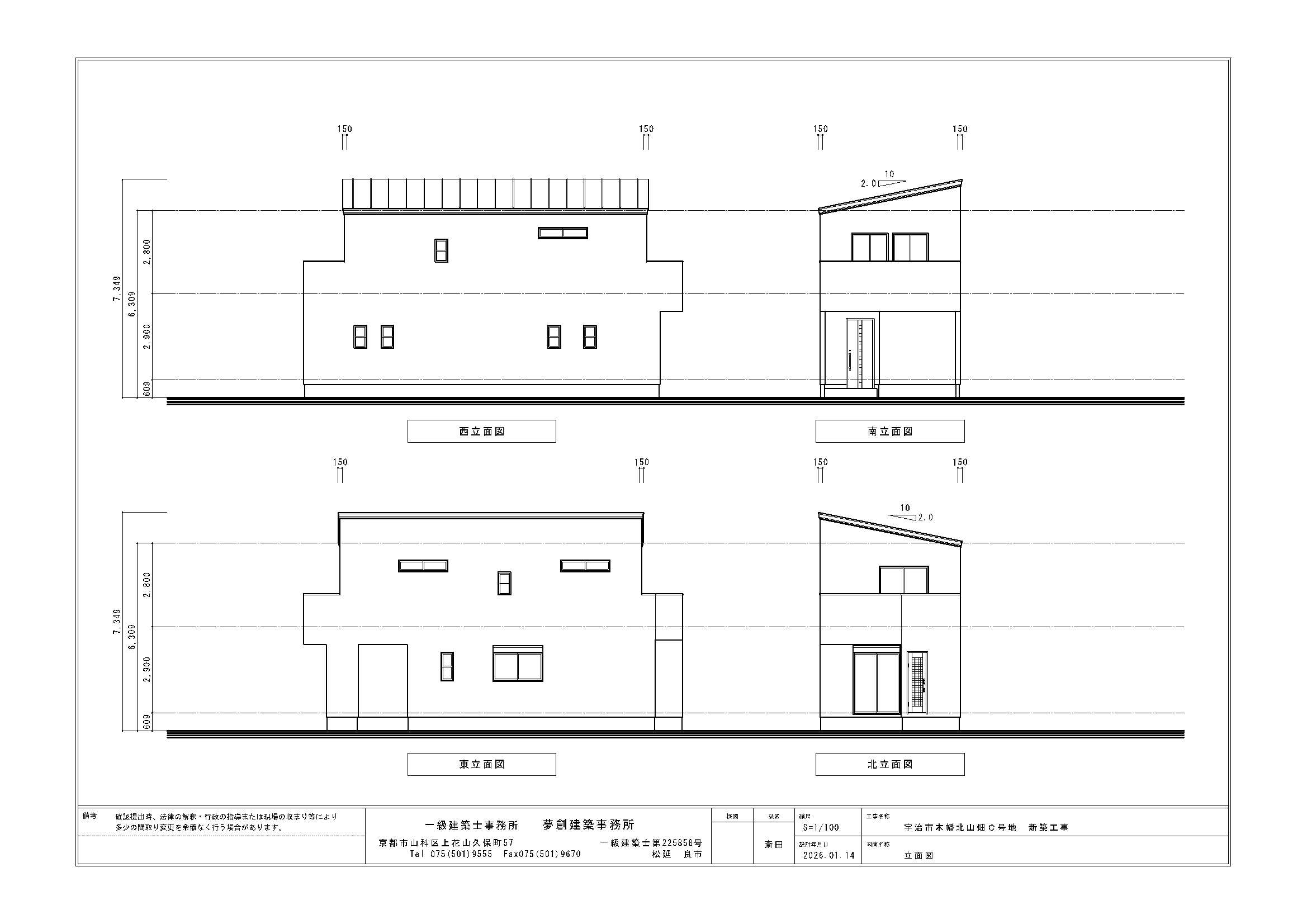
◎参考プラン C号地 図面(立面図)

◎参考プラン C号地 仕様書

◎参考 標準仕様





お気軽にお問合せください
間取りや設備、収納計画、内装のテイストに至るまで、
ご家族のライフスタイルに合わせて自由にプランニングしていただけます。
お子さまの成長に合わせた間取りの工夫や、
家事導線を考えたプランなど、
暮らしに寄り添った住まいづくりが可能です。
また、断熱性・耐震性にも配慮した安心の住まいをご提案し、
毎日の暮らしを快適に、そして長く安心して住み続けていただけるよう、
性能面にもこだわった家づくりを行っています。
ご要望に応じて、図面の修正や仕様の見直しにも柔軟に対応いたします。
三浦建設は、地域に根ざした家づくりを大切にし、
お客様一人ひとりの暮らしに寄り添ったご提案を行っています。
